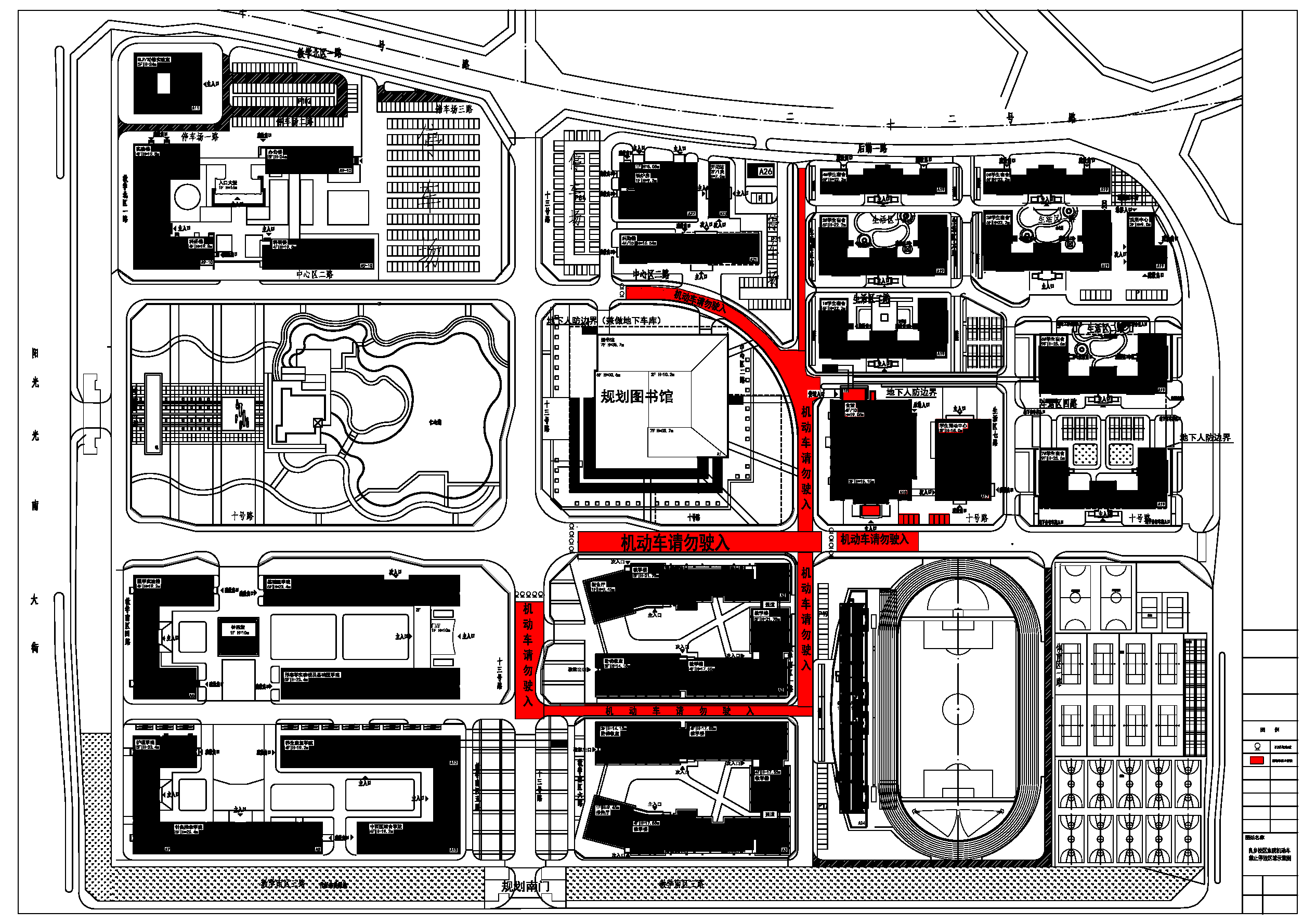
良乡校区已经投入使用,校内车辆逐渐增多。为保证师生安全,现已将良乡校区的教学区域和学生生活区域划定机动车禁停区。具体内容如下:
1.机动车禁停区包括:教学楼周边,食堂周边,学生公寓及浴室周边。
2.机动车禁停区与其他区域以石球或地桩隔开。
3.机动车请勿驶入禁停区。
4.下列车辆可驶入机动车禁停区,但不可长期停放:食堂运送食财的车辆,物业清运垃圾的车辆,商贸供货的车辆,救护车、警车、消防车、工程抢修车等特种作业车辆。
5.大型活动需临时开放机动车禁停区的,以相应协调会的统一安排为准。
6.办公楼周边有停车场,机动车可停放于内。
请各位老师不要将机动车驶入禁停区内,在校园其他部位行车,请放缓速度、注意瞭望,保证行人安全。
附图:1.良乡校区机动车禁停区示意图
2.良乡校区机动车禁停区示意图(局部)

